174 West Street S Orillia, Ontario L3V 6L4

49,322 sqft
Acreage

$9,450,000

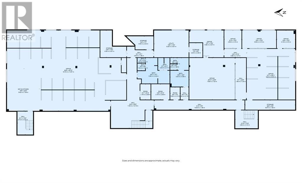
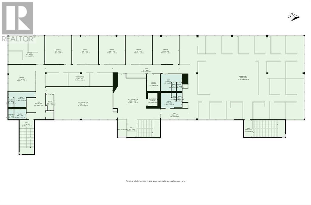
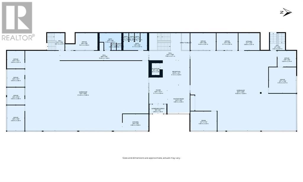
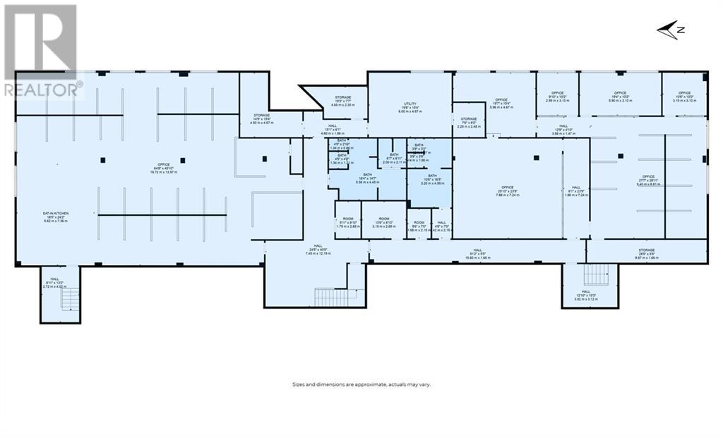
Prime Office Building Investment in Orillia Distinguished by its superior maintenance, strategic location, and strong investment potential, the building's strengths are: PEAK MAINTENANCE: Benefit from a property that's in excellent condition, with all capital improvements completed and up-to-date, ensuring a hassle-free investment. SOLID RETURNS: With 100% Occupancy, enjoy a 7.6% cap rate offering immediate cash flow. IDEAL LOCATION: Positioned directly across from the Orillia Recreation Centre and near amenities, this building is one of Orillia's most desirable office locations. GROWTH POTENTIAL: Located in an intensification node, anticipate capital appreciation with the city's forthcoming gentrification. Abutting 19.69 acre land also available as portfolio sale, along with another 23,477sf Orillia office building. (id:53086)

Property Details

MLS® Number 40615257
Property Type Office
Amenities Near By Public Transit
Communication Type High Speed Internet
Community Features High Traffic Area
Features Elevator, Crushed Stone Driveway
Parking Space Total 160

Building

Basement Type Full
Exterior Finish Brick Veneer
Stories Total 3
Size Exterior 49322.0000
Size Interior 49,322 Sqft
Utility Water Municipal Water

Land

Acreage Yes
Land Amenities Public Transit
Sewer Municipal Sewage System
Size Depth 369 Ft
Size Frontage 334 Ft
Size Irregular 2.77
Size Total 2.77 Ac|2 - 4.99 Acres
Size Total Text 2.77 Ac|2 - 4.99 Acres
Zoning Description C4i (h1)

Utilities

Electricity Available
Natural Gas Available
Telephone Available

https://www.realtor.ca/real-estate/27150912/174-west-street-s-orillia